火災保険加入義務有り 個人契約時保証会社審査・契約義務有り
保証料(1年間) 1年目:48,000円 2年目から毎年10,000円
ペット飼育可(イヌ・ネコ可):1匹につき3,000円/月
※契約開始日から2年以内での解約の場合、短期解約違約金(賃料総額2ヶ月分)が必要となります。
図面と現況が異なる場合は現況優先と致します。
| 所在地 | 綾部市味方町 綾部物件 | ||
| 交通 | JR山陰本線綾部駅 徒歩36分 バス(紫水ヶ丘) 徒歩2分 |
校区 | 綾部小学校 綾部中学校 |
| 物件種別 | 戸建て | ||
| 家賃(月額) | 12万円 |
共益費(月額) | 0円 |
| 敷金 | 0ヶ月 | 保証金 | |
| 礼金 | 0ヶ月 | 更新料 | 0ヶ月 |
| 敷引 | 駐車場(月額) | 空有 4台可能 | |
| 契約一時金 | |||
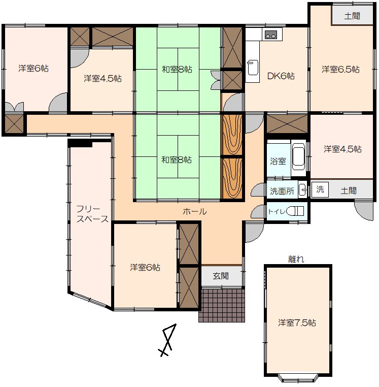
| 築年月 | 1976/10(昭和51年) | 間取 |
7DK |
| 面積 | 129.62m² | 部屋階数 | 1階 |
| 建物階数 | 地上1階 | 取引態様 | 仲介 |
| 構造 | 軽量鉄骨 | 現況 | 空家 |
| 総戸数 | 1 | ||
| 周辺環境 | |||
| 設備 | IHコンロ 給湯 独立洗面台 シャワー バス・トイレ別 温水洗浄便座 エアコン プロパンガス 公営水道 排水浄化槽 | ||
| 備考 |
火災保険加入義務有り 個人契約時保証会社審査・契約義務有り 保証料(1年間) 1年目:48,000円 2年目から毎年10,000円 ペット飼育可(イヌ・ネコ可):1匹につき3,000円/月 ※契約開始日から2年以内での解約の場合、短期解約違約金(賃料総額2ヶ月分)が必要となります。
図面と現況が異なる場合は現況優先と致します。 |
||
| 物件番号 | K067 | ||